top of page
Departamentos
San Marcos
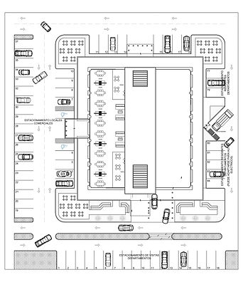
Este proyecto de usos mixtos consta de locales comerciales en la planta baja con estacionamiento para clientes. Los cuatro pisos siguientes se destinan exclusivamente a estacionamiento. Los pisos 5-7 albergan modernos departamentos tipo loft, mientras que el octavo piso cuenta con departamentos de dos habitaciones. En cada piso se encuentran áreas para diferentes tipos de amenidades, como gimnasio, lavandería, y áreas sociales. El rooftop se convierte en un espacio común con áreas de ocio y vistas panorámicas. El diseño incorpora tecnologías sostenibles y elementos arquitectónicos contemporáneos, creando un entorno versátil y vibrante que integra eficientemente comercio y vivienda.

%20(1).jpg)

.jpg)
.jpg)
.jpg)
%20(1).jpg)
.jpg)
bottom of page
.png)



